Group Expertise

Designing from first principles...

Here's how we begin ...

Part of a fruit juice facility

Equipment installation..

Process control

Fruit juice extraction machinery, pulpers, finishers, conveying systems, clean-in-place (CIP) systems, water purification plants, air purification plants, juice standardization plants, pasteurizers, evaporators, PID requisites, Electronic process simulators and control equipment, packaging lines, aseptic filling systems for pulps, concentrates and fruit juices, utilities equipment and offsites design and development.

These are some of the attributes of fruits processing projects. These are designed and customized for specific faclities. MAZDA expertise goes beyond this.

The scope covers processing of fruits and vegetables with IQF freezing technology in a COLD CHAIN of preservation and supply, and processing plants for a wide range of food products

Our projects designing, engineering activity is assisted and augmented by our several collaborators, principals in Europe and the USA as also our specialist associated equipment manufacturers in India, to result in path breaking highly competitive state-of- the- art process plants in the food processing discipline.

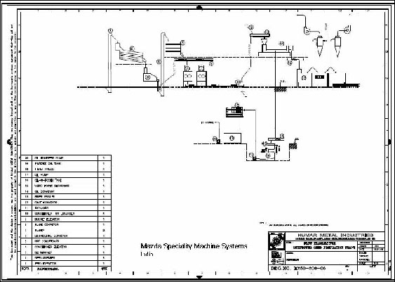
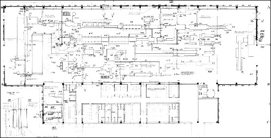
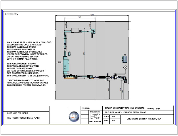
Here's how we plan the plant layout

A fruit juice plant internals

Edible Oils Refinery

Oil expellers

Steam Plants 0.5 to 7.5 tph